For Sale

Plot

Plot behind Railway Terrace, Broome, Aston-on-Clun, Craven Arms


£120,000 Guide Price

  • Full Planning Consent for a Detached, 4 Bed House
  • Idyllic Village Location with Open Countryside Views
  • Spacious Accommodation of Approx 1750 Sqft
  • Mains Water and Electricity Nearby
  • Convenient Transport Links
  • Spacious and Level Plot
  • Shropshire Council Planning 23/02073/FUL

Build Your Dream Home in Idyllic Village Setting

A unique opportunity to acquire a building plot with full planning permission for a detached, four-bedroom family home in the charming village of Broome, South Shropshire.

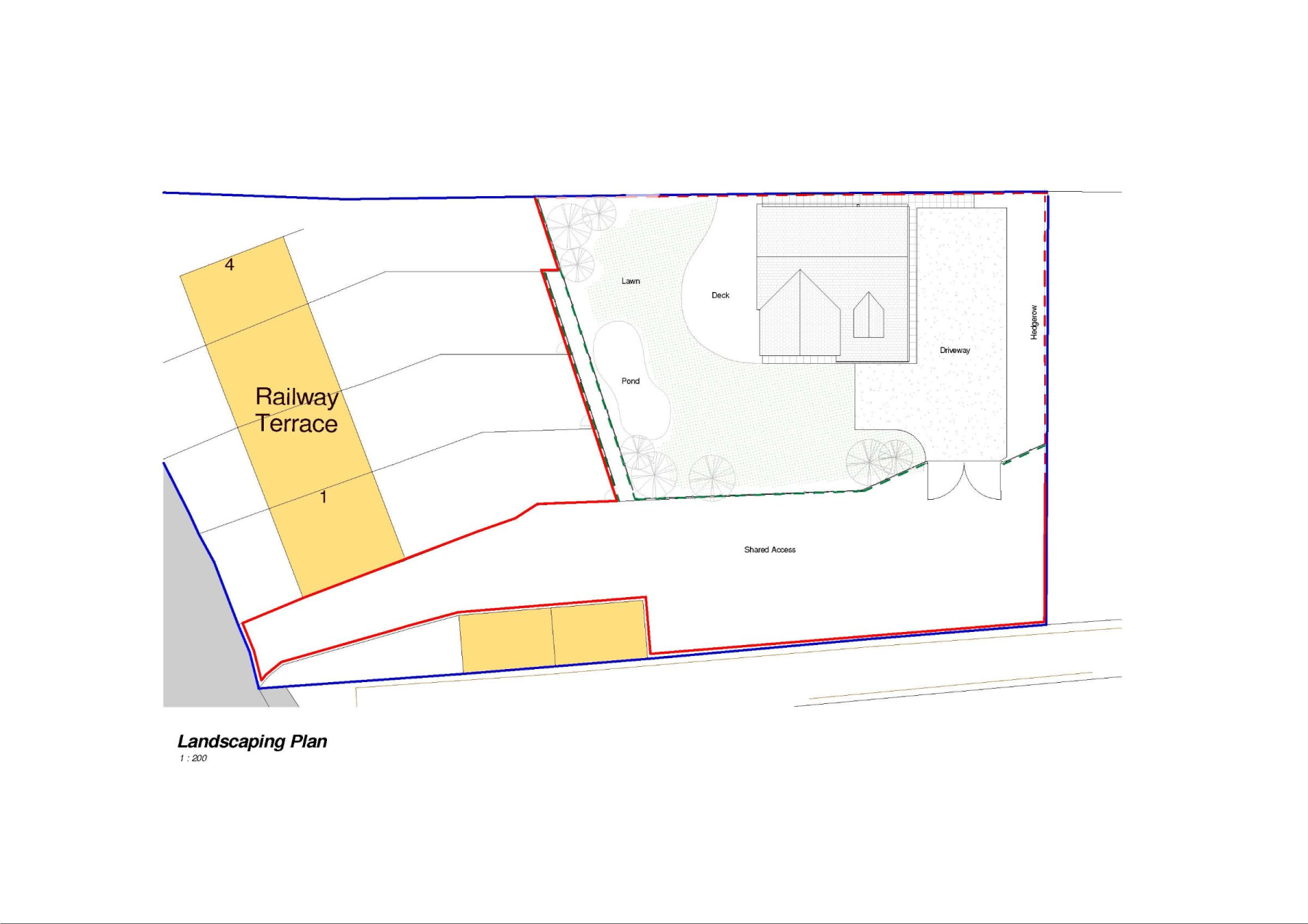
This picturesque plot offers a blank canvas to create a spacious and modern dwelling, extending to approximately 1750 square feet. The approved plans encompass a thoughtfully designed layout, including open-plan kitchen/dining area, separate lounge, study, four bedrooms (one en-suite), family bathroom, wet room/WC, and utility room.

Enjoy the privacy of your own garden with a sun deck and lawn, framed by mature hedges. Despite the peaceful rural setting, the village boasts a community shop and convenient transport links with a nearby railway station.

With stunning countryside views and a strong sense of community, this plot is perfect for those seeking a tranquil lifestyle without sacrificing modern comforts.

Nestled amidst the rolling hills of South Shropshire, Broome is a quintessential English village that exudes charm and tranquility. Surrounded by lush greenery and punctuated by the gentle curve of the Heart of Wales railway line, the village offers a serene escape from the hustle and bustle of modern life.

With its strong sense of community and warm welcome, Broome is an idyllic location for those seeking a peaceful yet convenient lifestyle. The village enjoys easy access to the nearby towns of Craven Arms and Ludlow, which offer a wider range of amenities and attractions.

plot for garden 1-4
Loading...
Loading...

Floorplan for Aston-on-Clun

Floorplan for Aston-on-Clun

Can't find what you are looking for?


Our helpful team are on hand to answer any queries and concerns you may have.


Get in Touch

This website uses cookies. We use cookies to provide social media features and to analyse our traffic.
You consent to our cookies if you continue to use our website. Read our cookie policy. I understand